




2-СТАЕН
Етаж:
0 от 3
Строителство:
Панел
Година на построяване:
2026
Категория:
Продажба
Газ:
Не
Тец:
Не
Особености:
В строеж, Асансьор, С гараж, С паркинг, СОТ, Интернет връзка, Видео наблюдение, Контрол на достъпа, Възможност за дан. кредит
Описание на имота
*ID Real Estate има удоволствието да Ви представи просторен партерен апартамент с прилежащ двор, разположен в тиха и зелена част на с. Панчарево само на 100 метра над ресторант Лебеда . Имотът е част от бутикова сграда ново строителство, с контролиран достъп, модерна архитектура и високо качество на изпълнение. Районът е предпочитан заради близостта до София, спокойната атмосфера и панорамните гледки към природата. Възможно закупване на подземно паркомясто!
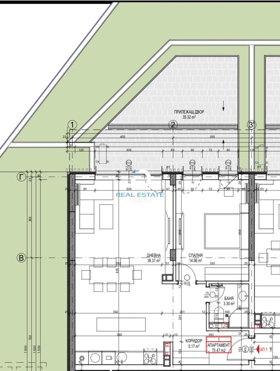
📏 Разпределение:
Дневна с кухненски бокс и трапезария 39.31 кв.м
Спалня 14.96 кв.м
Баня с тоалетна 3.30 кв.м
Коридор 5.17 кв.м
Прилежащ двор 35.32 кв.м (с достъп от дневната)
Изба (мазе) 3.27
✅ Предимства:
Отлична локация с бърз достъп до центъра на София (15 мин с кола)
Природа, тишина и чист въздух
Идеален имот както за живеене, така и за инвестиция
Собствен двор подходящ за деца, домашни любимци или градина
Модерно и функционално разпределение
Сграда с АКТ 14 с възможност за гъвкаво разсрочено плащане до завършването през 2026 г.
📞 За информация и огледи:
📌 ID Real Estate
📱 Телефон:+359894923131
📧 Имейл: id.realestateagency@gmail.com



